На Волині збудують спортивний комплекс із школою спортінгу

На Волині збудують спортивний комплекс із школою спортінгу

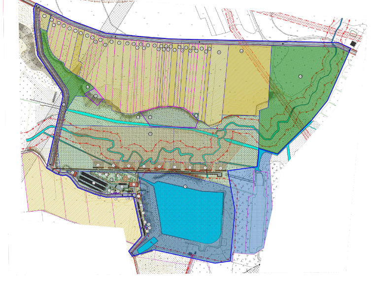
У Луцьку погодили детальний план території для будівництва сучасного спортивно‑тренувального комплексу в селі Сирники Луцького району. На ділянці площею понад 30 гектарів планують звести об’єкти фізичної культури і спорту, зокрема школу зі спортінгу — дисципліни мисливсько‑спортивної стрільби.

Ініціаторами проєкту виступили майстер спорту Ростислав Луцюк та президент ГО «Українська федерація спортінгу» Михайло Демчишин.

Таке рішення прийняли депутати на сесії Луцької міської ради у понеділок, 22 грудня. 

На Волині збудують спортивний комплекс із школою спортінгуНа Волині збудують спортивний комплекс із школою спортінгуНа Волині збудують спортивний комплекс із школою спортінгуНа Волині збудують спортивний комплекс із школою спортінгу

Це стало наступним кроком після попереднього дозволу на розробку плану, який депутати ухвалили ще у лютому 2025 року. Тоді йшлося лише про старт процесу, а тепер рада затвердила вже готовий документ після громадських слухань та екологічної оцінки.

На Волині збудують спортивний комплекс із школою спортінгу

Таким чином, міська рада винесла питання повторно не для дублювання, а щоб завершити процедуру: від дозволу на розробку — до погодження готового плану. Лише після цього можна переходити до реального будівництва спортивного комплексу, який має стати новим центром розвитку фізичної культури та спеціалізованих видів спорту на Волині.

Читайте також:

Можливо зацікавить